| Heat Included | |
| Water Included | |
| CAC Included | |
| Common Elements Included | |
| Building Insurance Included |
















































New2 days ago
45 CHARLES Street E 5010
Church-Yonge Corridor, Toronto C08
$629,900
Condo Apartment |
1 + 1 | 2 | 0 | 1
About this home
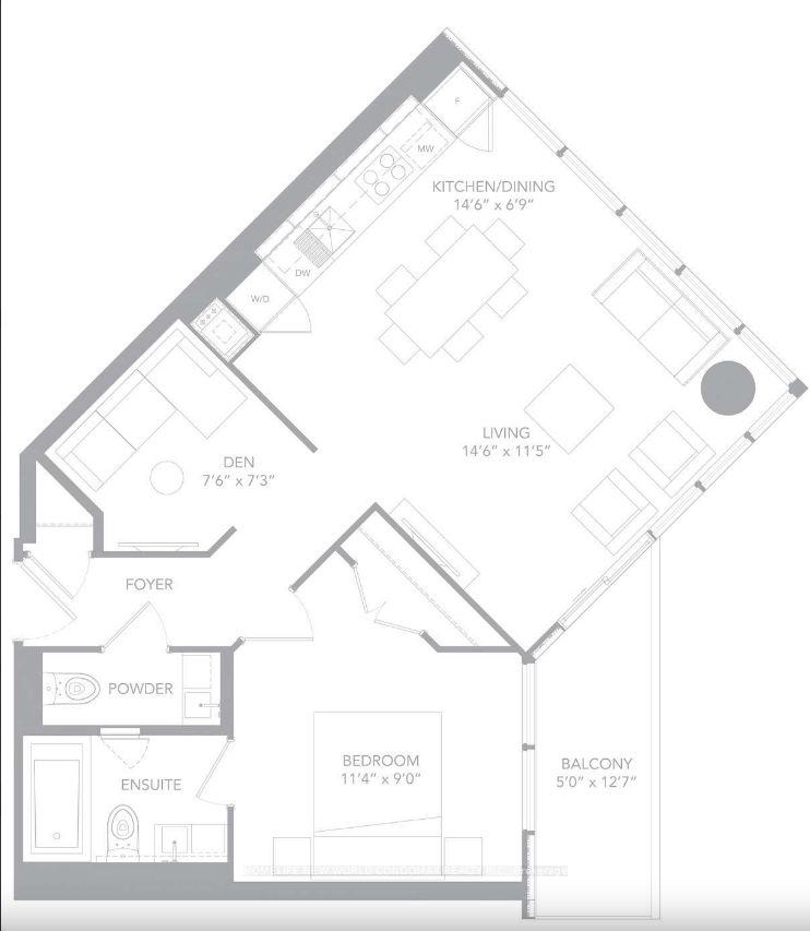
Prime Downtown Location! Ideal for Work, School, Shopping & Entertainment Chaz Yorkville Spacious 1+1 Bedroom Unit 678 sq ft Interior + Approx. 62 sq ft Open Balcony! The den can easily be converted into a second bedroom. Enjoy 24-Hour Concierge Service and Exclusive Access to the Chaz Club on the 26th and 37th Floors, Offering Spectacular Views of the Downtown Skyline and Lake Ontario. Unbeatable Location: Steps to TTC/Subway, University of Toronto, Toronto Metropolitan University, Yorkville Shopping, Fine Dining, and Office Towers. Enjoy unparalleled convenience with nearby subway stations, schools, and restaurants.
Extras
No extras listed.
| Type | Condo Apartment |
| Style | Apartment |
| Approx. Age | 6-10 |
| Size | 600-699 sq. ft. |
| Maintenance Fees | $611 |
| Locker | Owned |
| Balcony | Open |
| Exposure | North East |
| Parking Type | None |
| Parking Spaces | 0 |
| Parking Features | None |
| Property Tax | $3,831 |
| mls© Number | C12609752 |
| Listed By | HOMELIFE NEW WORLD CONDOMAX REALTY INC. |
Listing History
- No recent sale history for this listing.
- No recent lease history for this listing.
Similar Sold Listings
- No similar listings found.
Similar Active Listings
- No similar listings found.