| Heat Included | |
| Water Included | |
| CAC Included | |
| Common Elements Included |














































8 Scollard Street 709
Annex, Toronto C02
$429,999
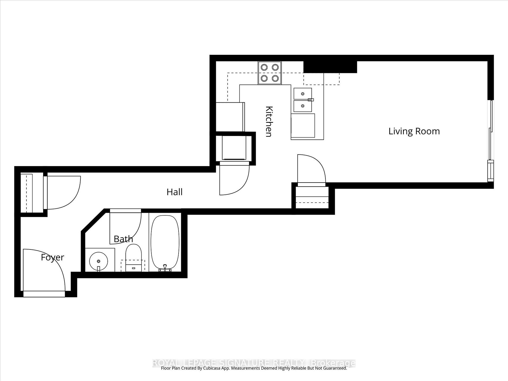
Experience refined urban living in this elegant studio residence, perfectly positioned in the heart of Yorkville. Designed for comfort and style, the suite offers a generous kitchen with full-size appliances, rich hardwood flooring throughout, and a private ensuite washer and dryer (new in 2025). A modernizedHVAC system (2022) ensures year-round comfort.Residents enjoy an exceptional array of boutique-style amenities, including a state-of-the-art fitness centre, yoga studio, sauna, multi-purpose entertaining lounge with kitchen, full concierge services, and a guest suite for visitors.Set amidst Yorkville's iconic designer boutiques, fine dining, galleries, luxury hotels, and cultural institutions, with the University of Toronto nearby. Steps to TTC and just minutes to Yonge & Bloor. Perfect 100 Walk Score - where the city truly lives at your doorstep. Make sure to check out the video tour!
No extras listed.
| Type | Condo Apartment |
| Style | Apartment |
| Approx. Age | Not available |
| Size | 0-499 sq. ft. |
| Maintenance Fees | $540 |
| Locker | Owned |
| Balcony | Open |
| Exposure | North |
| Parking Type | None |
| Parking Spaces | 0 |
| Parking Features | None |
| Property Tax | $2,255 |
| mls© Number | C12699374 |
| Listed By | ROYAL LEPAGE SIGNATURE REALTY |
Listing History
- No recent sale history for this listing.
- No recent lease history for this listing.
Similar Sold Listings
- No similar listings found.
Similar Active Listings
- No similar listings found.