

















































































54 Stanley Terrace Avenue
Niagara, Toronto C01
$2,495,000
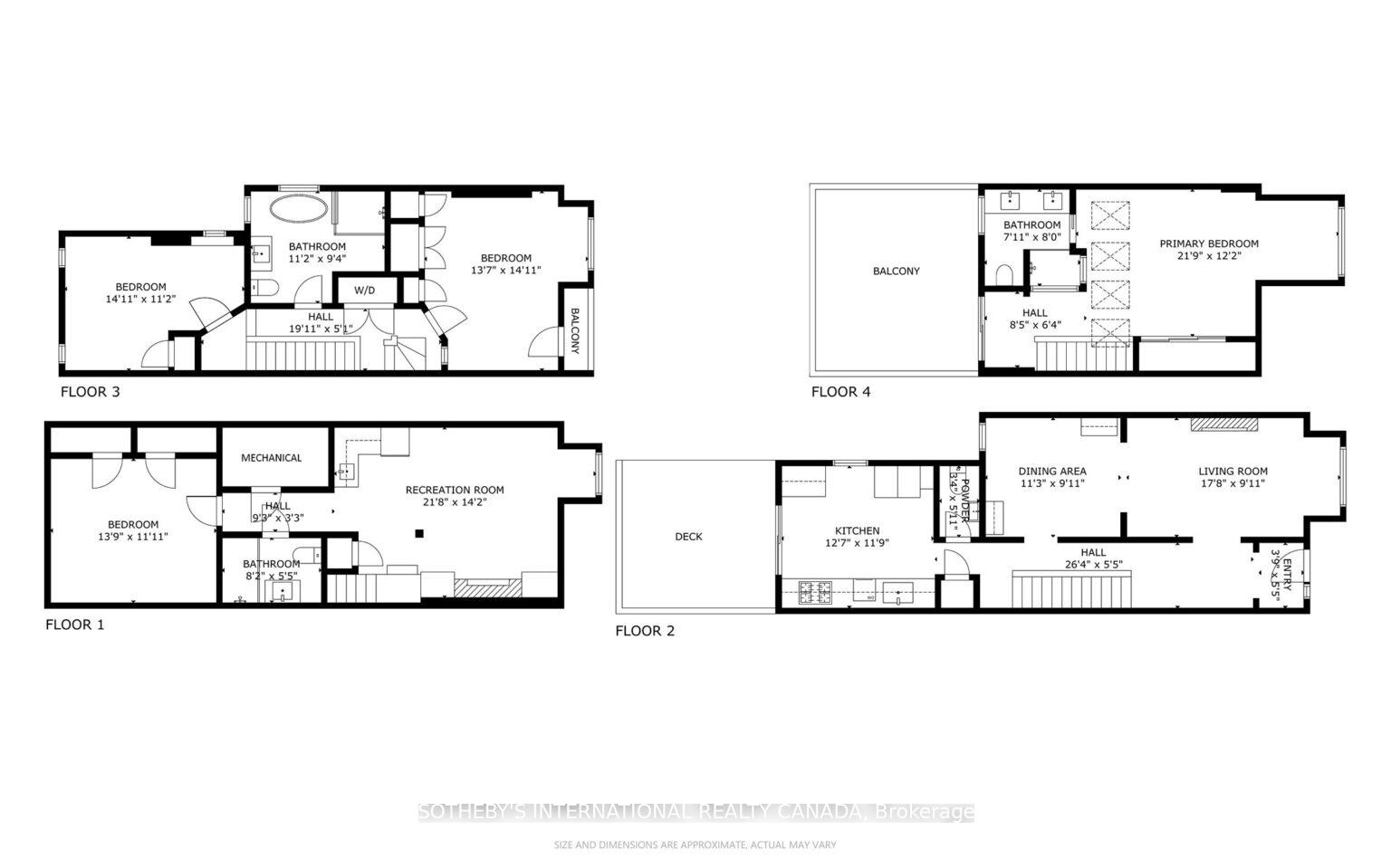
Rare double-lot offering overlooking Stanley Park in the heart of Trinity Bellwoods. Set on two separately deeded parcels with approximately 34 feet of combined frontage, this exceptional property offers both a beautifully restored Victorian residence and the rare flexibility of an additional lot with attached garage and up to three-car tandem parking. The 2.5-storey Victorian home offers over 2,700 square feet of thoughtfully designed living space, meticulously restored to blend the charm of its historic architecture with refined modern finishes. Soaring 10.5-foot ceilings, expansive windows, and elegant principal rooms create a bright and inviting home while preserving its craftsmanship and character. At the centre of the home is a chef-inspired kitchen with quartz countertops, premium appliances, and custom cabinetry, designed for both everyday living and effortless entertaining.The upper levels offer three generous bedrooms, including a private third-floor primary retreat with rooftop terrace and tranquil treetop views. The second level features a spa-inspired bath with heated floors, convenient laundry, and versatile spaces ideal for family living or guests. The fully underpinned lower level with 8-foot ceilings, built-ins, and fireplace provides exceptional additional living space ideal for a media room, home office, or recreation area. With two separately deeded lots and rare downtown frontage, the property also presents unique long-term flexibility for future expansion, redevelopment, or multi-generational living, subject to applicable approvals.Opportunities combining historic character, additional land, and significant parking rarely become available in this neighbourhood.Just steps from Trinity Bellwoods Park and the vibrant cafés, restaurants, galleries, and boutiques of Queen West and King West, this exceptional property offers the perfect balance of space, character, modern comfort and an unbeatable urban location.
No extras listed.
| Type | Semi-Detached |
| Style | 2 1/2 Storey |
| Approx. Age | 100+ |
| Size | 1500-2000 sq. ft. |
| Property Tax | $10,127 |
| Lot Size | 33.73 ft x 61.05 ft |
| mls© Number | C12862766 |
| Listed By | SOTHEBY'S INTERNATIONAL REALTY CANADA |
Listing History
- No recent sale history for this listing.
- No recent lease history for this listing.
Similar Sold Listings
- No similar listings found.
Similar Active Listings
- No similar listings found.