| Heat Included | |
| Common Elements Included | |
| Building Insurance Included | |
| Water Included | |
| CAC Included |






















































365 Church Street 809
Church-Yonge Corridor, Toronto C08
$399,000
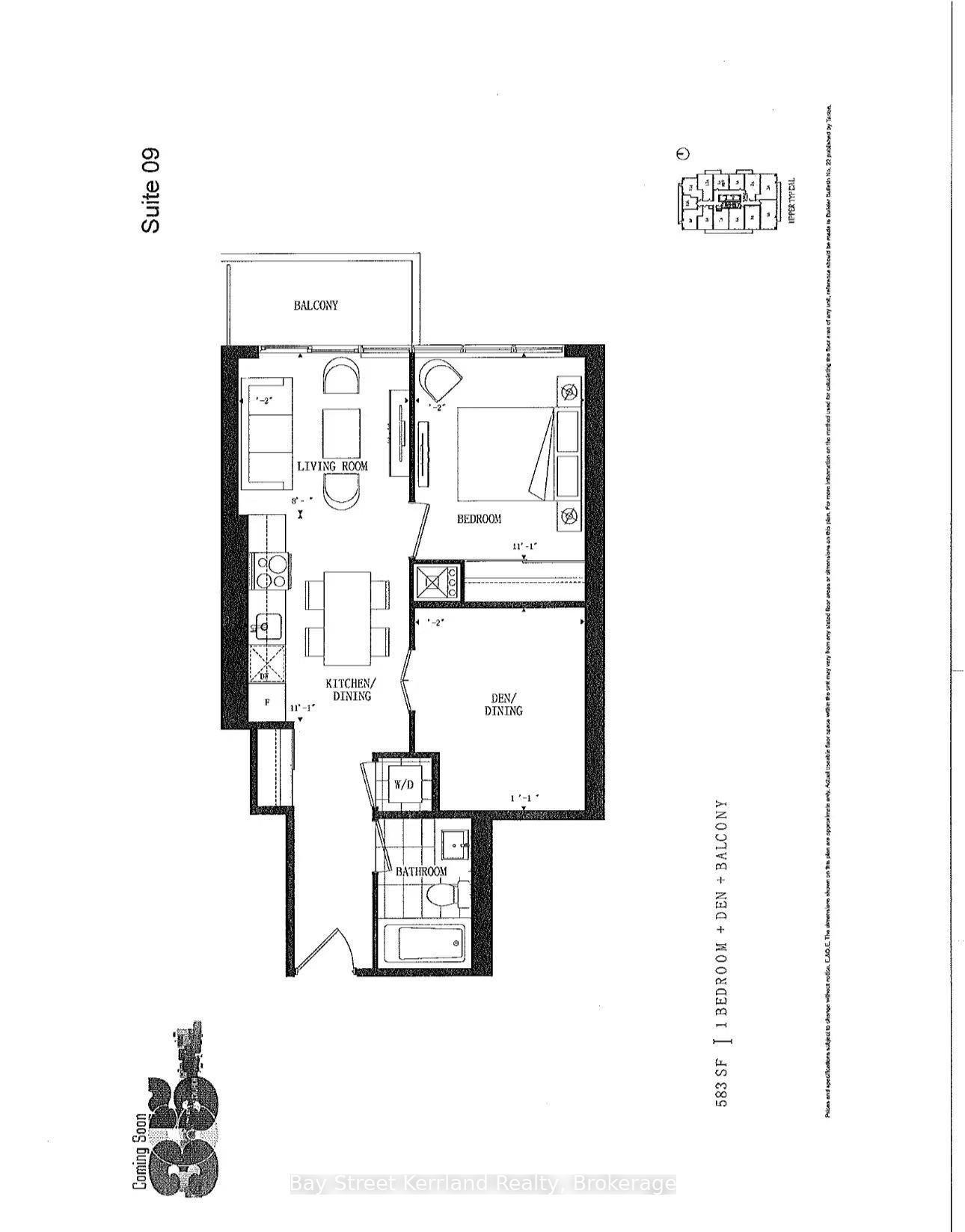
Bright 1+Den Unit with Unobstructed East-Facing City View! This like-new, freshly painted suite features a functional and efficient layout with 1 bedroom plus a spacious enclosed den with double doors, ideal as a second bedroom or home office.9 Foot Ceilings. Large Open Balcony with Gorgeous East View! Floor-to-ceiling windows showcase spectacular unobstructed views & natural lights, while the large balcony is the perfect place to enjoy the city skyline. Residents enjoy excellent building amenities, including a rooftop BBQ area, rooftop lounge, party room, theatre, yoga room, TV room, gym, study space, guest suites, pet wash station, and 24-hour concierge.Located in the heart of downtown Toronto, just steps to Yonge & Dundas, College Subway Station, Carlton streetcar, restaurants, shops, Loblaws, and LCBO. Walking distance to Toronto Metropolitan University and especially close to the University of Toronto, making this an exceptional option for end-users and investors alike. A rare opportunity to own a bright suite with unobstructed views, a versatile layout, and an unbeatable downtown location.
No extras listed.
| Type | Condo Apartment |
| Style | Apartment |
| Approx. Age | Not available |
| Size | 500-599 sq. ft. |
| Maintenance Fees | $625 |
| Locker | None |
| Balcony | Enclosed |
| Exposure | West |
| Parking Type | Underground |
| Parking Spaces | 0 |
| Parking Features | None |
| Property Tax | $2,685 |
| mls© Number | C12958970 |
| Listed By | Bay Street Kerrland Realty |
Listing History
- No recent sale history for this listing.
- No recent lease history for this listing.
Similar Sold Listings
- No similar listings found.
Similar Active Listings
- No similar listings found.