













































589 Logan Avenue
North Riverdale, Toronto E01
$1,299,000
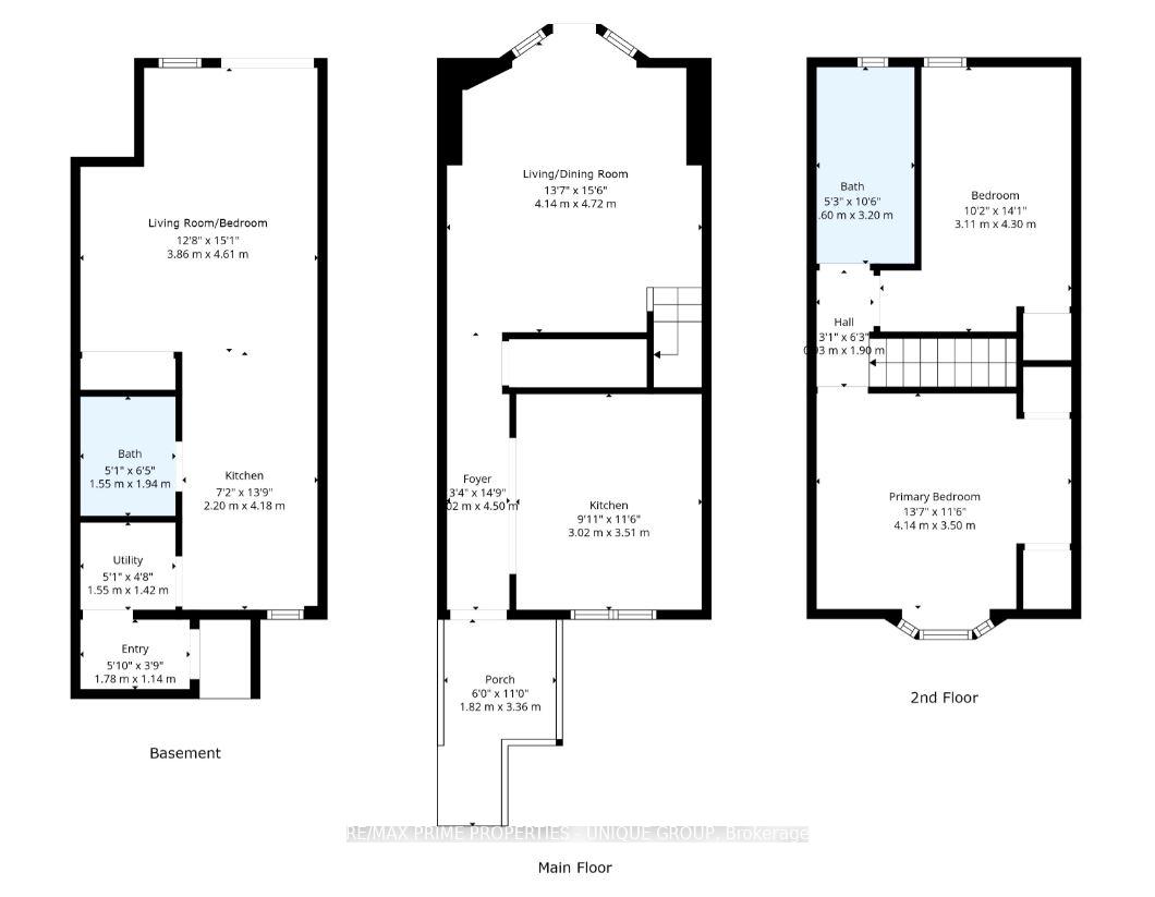
Live in the heart of Riverdale at 589 Logan Ave. This classic red brick rowhome features an elegant kitchen with stainless steel appliances, granite counters and room for a breakfast table by the double sash windows. The spacious and bright living/dining room is quietly tucked away at the back of the house offering high ceilings and a walk out to the deck with neighbourhood views. The primary bedroom has a sunny bay window, double closets and room for a king bed. Earn additional income from the lower level apartment. It feels fresh and inviting with exposed brick, pot lights and a fully above ground walk-out leading to the backyard. Enjoy the convenience of lane parking for one large or two small cars. Steps to Withrow Park, Riverdale Perk Cafe, The Danforth, Riverdale Park, two streetcar lines and Chester station.
No extras listed.
| Type | Att/Row/Townhouse |
| Style | 2-Storey |
| Approx. Age | 100+ |
| Size | 700-1100 sq. ft. |
| Property Tax | $5,301 |
| Lot Size | 14.1 ft x 86.11 ft |
| mls© Number | E12685494 |
| Listed By | RE/MAX PRIME PROPERTIES - UNIQUE GROUP |
Listing History
- No recent sale history for this listing.
- No recent lease history for this listing.
Similar Sold Listings
- No similar listings found.
Similar Active Listings
- No similar listings found.