| Common Elements Included | |
| Building Insurance Included |


















1050 Eastern Avenue 329
Greenwood-Coxwell, Toronto E01
$579,900
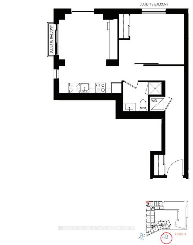
For the Strategic Investor: This property is fully tenanted with a high-quality occupant, offering a stabilized, turn-key asset in a high-demand lakeside community. This sale is an assignment, the condo isn't registered yet.The architecture is a 21st century response to urban design principles. Inspired by its natural environment and community, and exhibiting modern ideas of wellness, Queen & Ashbridge is an extraordinary choice for urbanites who crave something different. Features include a large fitness centre, a 9th-floor Sky Club, and 24-hour concierge.Just steps from the shores of Lake Ontario with immediate access to the TTC, this home provides both tranquility and connectivity.
No extras listed.
| Type | Condo Apartment |
| Style | 1 Storey/Apt |
| Approx. Age | Not available |
| Size | 500-599 sq. ft. |
| Locker | None |
| Balcony | Juliette |
| Exposure | West |
| Parking Type | Underground |
| Parking Spaces | 0 |
| Parking Features | Street Only |
| Property Tax | --- |
| mls© Number | E12863640 |
| Listed By | NEW WORLD 2000 REALTY INC. |
Listing History
- No recent sale history for this listing.
- No recent lease history for this listing.
Similar Sold Listings
- No similar listings found.
Similar Active Listings
- No similar listings found.