



































































































122 Twenty Second Street
Long Branch, Toronto W06
$849,900
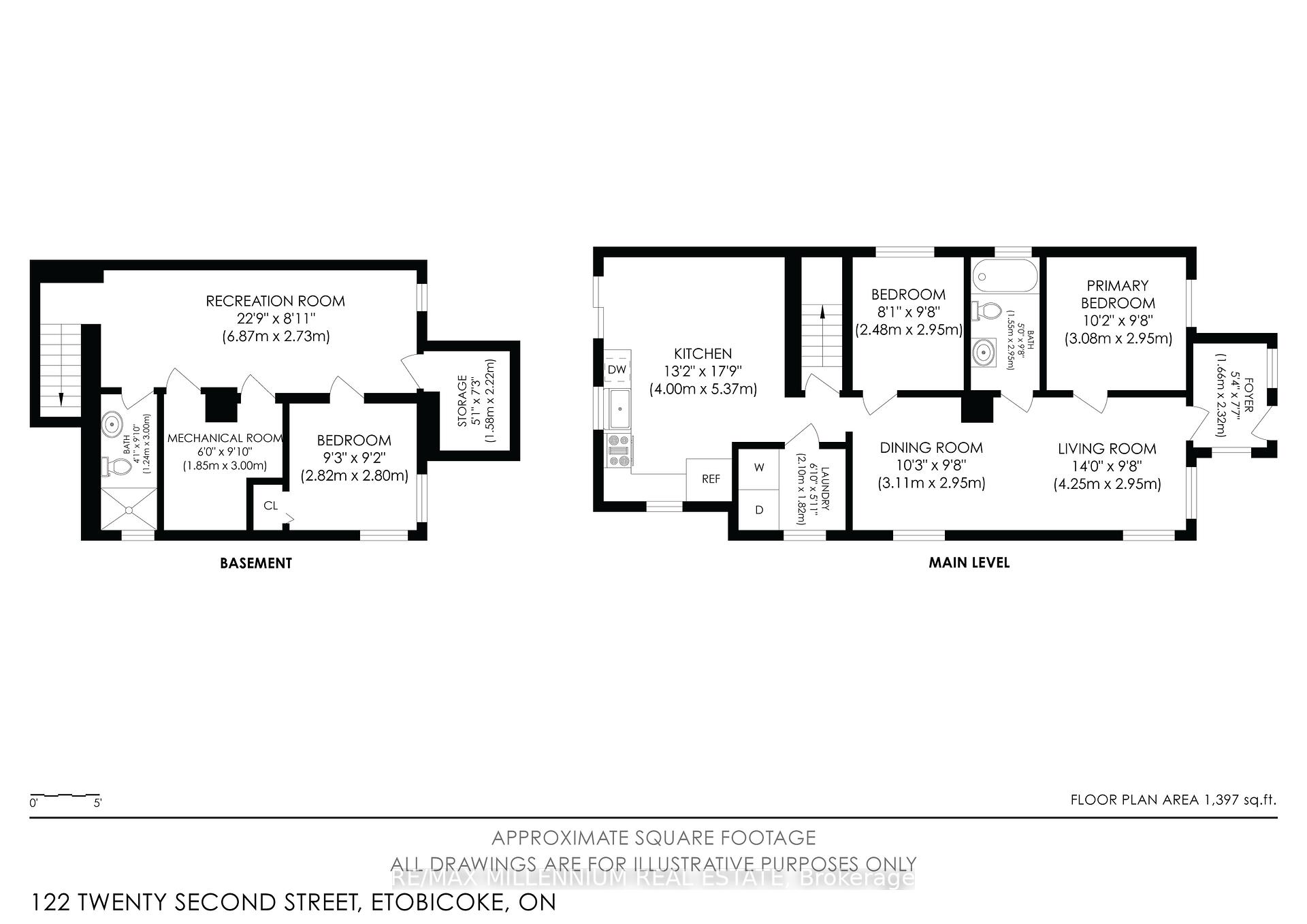
Beautifully updated 2+1 bedroom home offering modern finishes and versatile living space.Features include luxury vinyl flooring throughout the living room, bedrooms, and basement, smooth ceilings, pot lights, and fresh paint.The renovated kitchen boasts quartz countertops and backsplash, under-mount sink, pantry, and stainless steel appliances. Walk out from the kitchen to a private backyard deck with BBQ area and hot tub ideal for entertaining.The main floor offers a stylish 4-piece bath and a dedicated laundry room with newer washer and dryer, quartz counters and backsplash, under-mount sink, and window.The finished basement provides excellent in-law suite potential with an additional bedroom and living area, wet bar area/kitchenette, and a modern 3-piece bath with glass shower enclosure.Extensively updated with newer windows and doors, updated plumbing, 200 AMP electrical panel with updated wiring, furnace, A/C, on-demand tankless hot water heater, sump pump with battery backup, and professionally waterproofed exterior foundation. Mutual drive with parking at rear. Located close to parks, schools, and transit.
No extras listed.
| Type | Detached |
| Style | Bungalow |
| Approx. Age | Not available |
| Size | 700-1100 sq. ft. |
| Property Tax | $3,295 |
| Lot Size | 25 ft x 109.96 ft |
| mls© Number | W12662620 |
| Listed By | RE/MAX MILLENNIUM REAL ESTATE |
Listing History
- No recent sale history for this listing.
- No recent lease history for this listing.
Similar Sold Listings
- No similar listings found.
Similar Active Listings
- No similar listings found.