| Common Elements Included | |
| Building Insurance Included | |
| Parking Included |








































































3400 Lake Shore Boulevard W 104
Long Branch, Toronto W06
$599,999
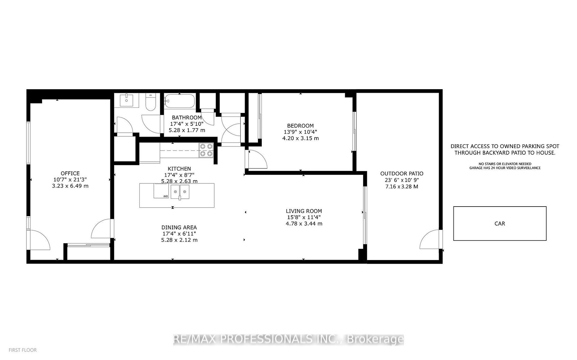
Welcome to the Lofts on 29th, a boutique 40 unit townhouse complex in the heart of Long Branch offering a rare ground floor suite with versatile live/work potential. This spacious 2 bedroom 1 bath home features a flexible front room that can serve as an office, studio or professional space with direct street access OR the seller is willing to enclose the space to provide a true second bedroom if preferred. The open concept kitchen features a large centre island, double sink and breakfast bar flowing seamlessly into the dining and living areas with laminate floors, pot lights and flat finished ceilings. A walkout leads to a private patio with exclusive direct entry into the underground parking garage and bike storage - a unique & convenient feature enjoyed by only a handful of units! Upgrades include California shutters and recently replaced windows and sliding doors. The primary bedroom is generous in size and the unit also includes ensuite laundry. Perfectly located in a vibrant and fast developing neighbourhood with TTC at your doorstep and close to Long Branch GO station, parks, the lake, restaurants, schools and easy access to highways, this home offers the ideal blend of convenience, lifestyle and value in one of Toronto's most desirable lakeside communities. ** Seller is willing to enclose the front room to a 2nd bedroom upon request**
No extras listed.
| Type | Condo Townhouse |
| Style | Bungalow |
| Approx. Age | Not available |
| Size | 1000-1199 sq. ft. |
| Maintenance Fees | $669 |
| Locker | None |
| Balcony | Terrace |
| Exposure | North |
| Parking Type | Underground |
| Parking Spaces | 1 |
| Parking Features | None |
| Property Tax | $2,647 |
| mls© Number | W12873316 |
| Listed By | RE/MAX PROFESSIONALS INC. |
Listing History
- No recent sale history for this listing.
- No recent lease history for this listing.
Similar Sold Listings
- No similar listings found.
Similar Active Listings
- No similar listings found.