| Heat Included | |
| Water Included | |
| CAC Included | |
| Building Insurance Included | |
| Common Elements Included |










































New5 hours ago
20 Joe Shuster Way 212
South Parkdale, Toronto W01
$540,000
Condo Apartment |
2 | 1 | 0 | 1
About this home
Corner Unit With Total Privacy With Spectacular View Of Lamport Stadium , Great 2 Bedroom 1 Bathroom Condo In Boutique Building In The King West And Liberty Village Neighborhoods. With Convenient Retail On The Ground Floor, With New Longo's , Canadian Tire , Winners On The Adjacent Corner.Ttc Street Car At Your Doorstep. Building Equipped With Gym, Library , Meeting Room, Guest Suites , Terrace Patio Etc.
Extras
No extras listed.
| Type | Condo Apartment |
| Style | Apartment |
| Approx. Age | Not available |
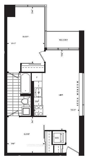
| Size | 600-699 sq. ft. |
| Maintenance Fees | $544 |
| Locker | Owned |
| Balcony | Open |
| Exposure | South |
| Parking Type | None |
| Parking Spaces | 0 |
| Parking Features | None |
| Property Tax | $2,134 |
| mls© Number | W12959498 |
| Listed By | Arolin Realty Inc. |
Listing History
- No recent sale history for this listing.
- No recent lease history for this listing.
Similar Sold Listings
- No similar listings found.
Similar Active Listings
- No similar listings found.